Leave a Message

Thank you for your message. I will be in touch with you shortly.

Explore Properties

Property Description

Welcome to 7312 Island Circle, where every detail reflects a balance of craftsmanship, comfort, and connection. Perfectly set on a quiet street and backing to the 12th fairway, this rare property captures the essence of modern Colorado living; refined yet relaxed, elegant yet effortless. Nearly one-third acre of beautifully landscaped grounds provides space and privacy, while expansive windows frame sweeping mountain and golf course views. Inside, the home has been completely reimagined with designer detail and timeless sophistication: custom walnut cabinetry, stunning hardwood floors, sleek quartz countertops, and statement lighting blend seamlessly into a warm, contemporary aesthetic. The open-concept design celebrates natural light and flow, creating inviting spaces for connection. A main-level ensuite bedroom offers versatility for guests, an office, or a main-floor primary. Upstairs, the luxurious primary suite is a serene retreat with panoramic views, a spa-inspired bath, and a spacious walk-in closet. Every system has been renewed, HVAC, roof, windows, wiring, plumbing, and appliances, offering modern comfort and efficiency. Step outside to a beautifully landscaped backyard, where indoor-outdoor living unfolds effortlessly. Whether hosting sunset dinners on the patio or savoring quiet mornings with fairway views, this home offers a lifestyle defined by ease, beauty, and belonging. Welcome home, to a place where design meets function and life unfolds in perfect balance.

Overview

Property Status
For Sale
Lot Size
0.31 Acres
MLS ID
1039469
Property Type
Residential
Year Built
1982

Features & Amenities

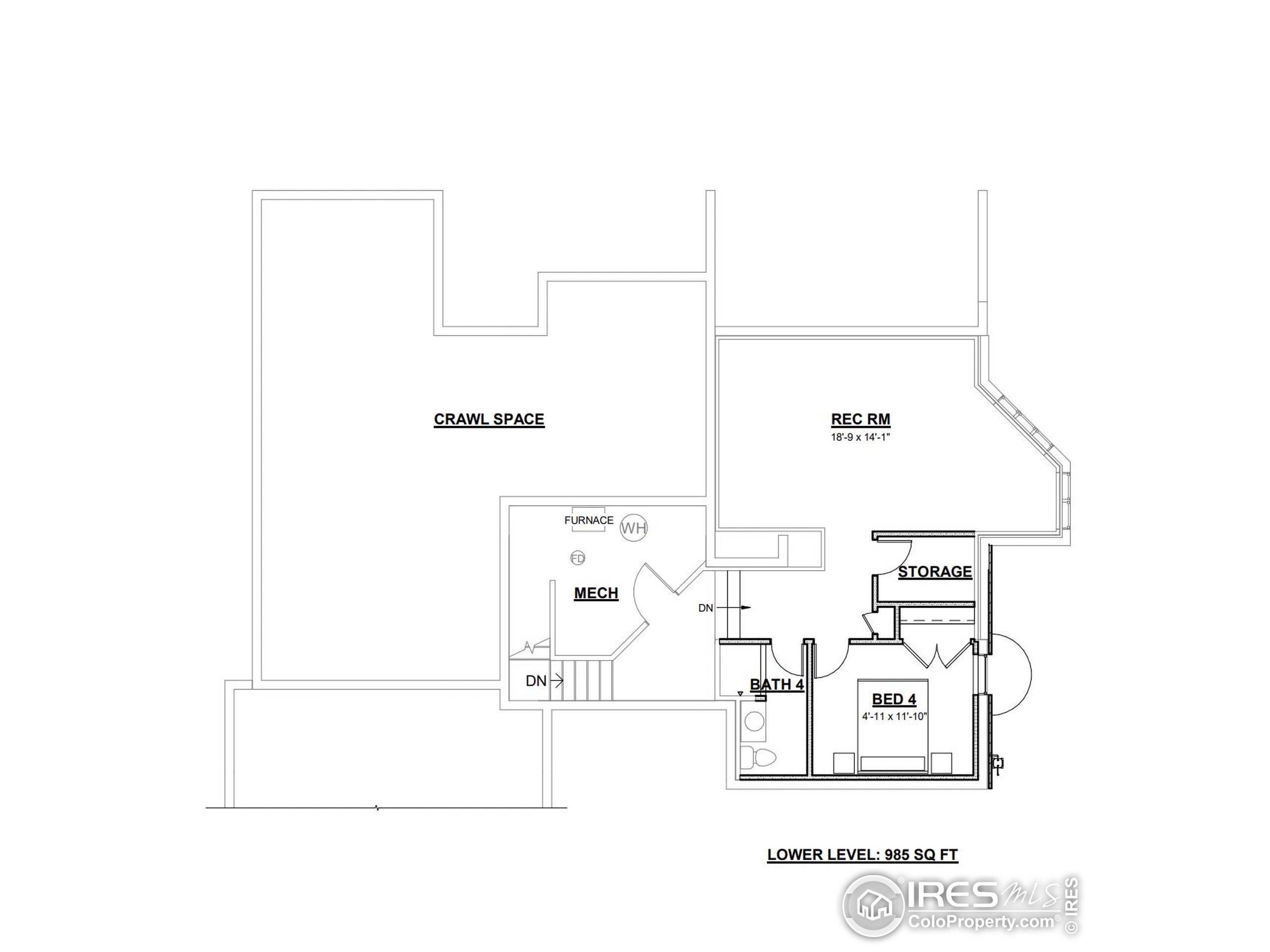
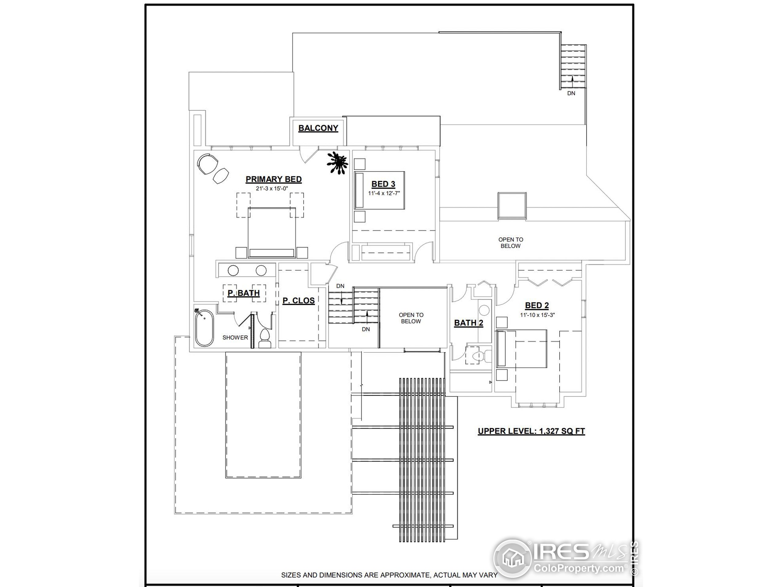
Total Area
3,171 Sq.Ft.
Neighborhood
Gunbarrel
Architecture Styles
Contemporary/Modern
View Description
Foothills View
Stories
2
Garage Spaces
2.0
Water Source
City Water, City of Boulder
Utilites
Natural Gas Available, Electricity Available
Roof
Composition
Lot Features
Gutters, Fire Hydrant within 500 Feet, Lawn Sprinkler System, Cul-De-Sac, Rolling Slope, On Golf Course, Near Golf Course
Heat Type
Forced Air
Air Conditioning
Central Air
Other Interior Features
Eat-in Kitchen, Cathedral/Vaulted Ceilings, Open Floorplan, Pantry, Walk-In Closet(s), Kitchen Island, Two Primary Suites, 9 ft Ceilings
Disability Features
Main Level Laundry
Other Exterior Features
Balcony
Elementary School
Heatherwood
Middle School
Platt
High School
Boulder
School District
Boulder Valley Dist RE2
Sales Price
$2,995,000
Real Estate Tax
$9,495/yr
Zoning
RR

Downloads

7312 Island Cir

Schedule a Tour

I would love to show you this beautiful property. Please select your preferred date and time below. I will be in touch shortly to confirm your appointment.

Enter a valid email

Thank you

for your interest in 7312 Island Cir, Boulder, CO 80301

back to page
7312 Island Cir
Navigate
Gunbarrel

Explore Gunbarrel

40.0612° N, 105.1668° W

read more
7312 Island Cir
explore in 3d

Mortgage Calculator

Estimate your monthly mortgage payment, including the principal and interest, property taxes, and HOA. Adjust the values to generate a more accurate rate.
$0,000 Your Payment 20 15 65
$0,000 Your Payment

I'm Interested In

7312 Island Cir

or
  • CallMaia Tozzi

    License #100083762

    (720) 757-9927
  • BROWSE MY

    Current & Sold Properties

    • 2125 Upland Ave Sold

      $3,570,000

      2125 Upland Ave, Boulder, CO 80304

      • 4 Beds
      • 4 Baths
      • 3,187 Sq.Ft.
    • 2015 Kalmia Ave Sold

      $3,225,000

      2015 Kalmia Ave, Boulder, CO 80304

      • 4 Beds
      • 4 Baths
      • 4,044 Sq.Ft.
    • 1077 Canyon Blvd Sold

      $2,999,999

      1077 Canyon Boulevard, Unit 302, Boulder, CO 80302

      • 3 Beds
      • 3 Baths
    • 7312 Island Cir For Sale

      $2,995,000

      7312 Island Cir, Boulder, CO 80301

      • 5 Beds
      • 5 Baths
      • 4,372 Sq.Ft.
    • 2210 Norwood Ave Sold

      $2,900,000

      2210 Norwood Avenue, Boulder, CO 80304

      • 4 Beds
      • 4 Baths
    • 603 Kalmia Ave Sold

      $2,250,000

      603 Kalmia Avenue, Boulder, CO 80304

      • 3 Beds
      • 5 Baths
    • 300 Oakwood Pl Sold

      $1,915,000

      300 Oakwood Plaza, Boulder, CO 80304

      • 3 Beds
      • 4 Baths
    • 1616 N St Sold

      $1,725,000

      1616 North Street, Boulder, CO 80304

      • 3 Beds
      • 2 Baths
    • 3780 Lakebriar Dr Sold

      $1,607,000

      3780 Lakebriar Dr, Boulder, CO 80304

      • 3 Beds
      • 4 Baths
      • 2,300 Sq.Ft.
    • 2279 Nicholl St E Sold

      $1,595,000

      2279 Nicholl St E, Boulder, CO 80304

      • 3 Beds
      • 2 Baths
      • 2,112 Sq.Ft.
    • 5312 Gallatin Pl Sold

      $1,579,000

      5312 Gallatin Pl, Boulder, CO 80303

      • 5 Beds
      • 4 Baths
      • 4,679 Sq.Ft.
    • 7312 Island Circle Sold

      $1,470,000

      7312 Island Circle, Boulder, CO 80301

      • 4 Beds
      • 5 Baths
      • 3,813 Sq.Ft.
    • 2130 Upland Ave Sold

      $1,435,000

      2130 Upland Ave, Boulder, CO 80304

      • 3 Beds
      • 3 Baths
      • 1,970 Sq.Ft.
    • 4785 Hancock Dr Sold

      $1,410,000

      4785 Hancock Dr, Boulder, CO 80303

      • 4 Beds
      • 3 Baths
      • 2,725 Sq.Ft.
    • 1620 Kalmia Ave Sold

      $1,300,000

      1620 Kalmia Avenue, Boulder, CO 80304

      • 5 Beds
      • 2 Baths
    • 816 Mountain View Dr Sold

      $1,275,000

      816 Mountain View Dr, Lyons, CO 80540

      • 4 Beds
      • 4 Baths
      • 2,702 Sq.Ft.
    • 3244 Vallejo St Sold

      $815,000

      3244 Vallejo St, Denver, CO 80211

      • 3 Beds
      • 2 Baths
      • 1,696 Sq.Ft.
    • 1059 Larkspur Dr Sold

      $765,000

      1059 Larkspur Dr, Erie, CO 80516

      • 4 Beds
      • 3 Baths
      • 4,220 Sq.Ft.
    • 1127 Highlands Dr Sold

      $760,000

      1127 Highlands Dr, Erie, CO 80516

      • 4 Beds
      • 3 Baths
      • 3,428 Sq.Ft.
    • 3298 Sentinel Dr Sold

      $748,000

      3298 Sentinel Dr, Boulder, CO 80301

      • 3 Beds
      • 4 Baths
      • 1,888 Sq.Ft.
    • 1438 Beatrice Ct Sold

      $689,000

      1438 Beatrice Ct, Longmont, CO 80503

      • 4 Beds
      • 3 Baths
      • 2,552 Sq.Ft.
    • 849 Alpine Ridge St Sold

      $667,000

      849 Alpine Ridge St, Erie, CO 80516

      • 5 Beds
      • 3 Baths
      • 2,669 Sq.Ft.
    • 1918 N Shore Dr Sold

      $640,000

      1918 N Shore Dr, Longmont, CO 80503

      • 3 Beds
      • 3 Baths
      • 2,472 Sq.Ft.
    • 13974 W Warren Drive Sold

      $635,000

      13974 W Warren Drive, Lakewood, CO 80228

      • 4 Beds
      • 3 Baths
      • 2,624 Sq.Ft.
    • 450 Aspen Ct Sold

      $589,000

      450 Aspen Ct, Broomfield, CO 80020

      • 4 Beds
      • 3 Baths
      • 2,650 Sq.Ft.
    • 1545 Sagrimore Cir Sold

      $588,000

      1545 Sagrimore Cir, Lafayette, CO 80026

      • 3 Beds
      • 2 Baths
      • 1,664 Sq.Ft.
    • 3202 Cripple Creek Trl Unit 25  Sold

      $580,000

      3202 Cripple Creek Trail Unit 25 , Boulder , CO 80305

      • 2 Beds
      • 1 Bath
    • 1109 N Beaver Rd Sold

      $560,000

      1109 North Beaver Road, Black Hawk, CO 80422

      • 2 Beds
      • 3 Baths
    • 643 Coughlin Meadows Rd Sold

      $540,000

      643 Coughlin Meadows Road, Boulder, CO 80302

      • 2 Beds
      • 1 Bath
    • 4650 Holiday Dr Unit 202 Sold

      $535,535

      4650 Holiday Drive Unit 202, Boulder, CO 80304

      • 1 Bed
      • 1 Bath
    • 1802 Princess Dr Sold

      $525,000

      1802 Princess Dr, Longmont, CO 80501

      • 4 Beds
      • 2 Baths
      • 2,050 Sq.Ft.
    • 11205 W 102nd Pl Sold

      $515,000

      11205 W 102nd Pl, Westminster, CO 80021

      • 3 Beds
      • 1 Bath
      • 1,228 Sq.Ft.
    • 13550 Washington St 2C Sold

      $510,000

      13550 Washington St 2C, Thornton, CO 80241

      • 3 Beds
      • 4 Baths
      • 2,476 Sq.Ft.
    • 617 Robert St Sold

      $510,000

      617 Robert St, Longmont, CO 80503

      • 3 Beds
      • 4 Baths
      • 2,016 Sq.Ft.
    • 11205 W 102nd Pl Under Contract

      $500,000

      11205 W 102nd Pl, Westminster, CO 80021

      • 3 Beds
      • 1 Bath
      • 1,228 Sq.Ft.
    • 1601 Venice Ln Sold

      $497,000

      1601 Venice Ln, Longmont, CO 80503

      • 2 Beds
      • 3 Baths
      • 1,620 Sq.Ft.
    • 12988 Grant Cir W B Sold

      $434,000

      12988 Grant Cir W B, Thornton, CO 80241

      • 2 Beds
      • 3 Baths
      • 1,328 Sq.Ft.
    • 869 Cottonwood Dr Sold

      $422,000

      869 Cottonwood Drive, Loveland, CO 80538

      • 3 Beds
      • 2 Baths
    • 727 Baker St Sold

      $360,000

      727 Baker St, Longmont, CO 80501

      • 2 Beds
      • 2 Baths
      • 1,040 Sq.Ft.
    • 4155 47th St Unit D Sold

      $194,953

      4155 47th Street Unit D, Boulder, CO 80301

      • 2 Beds
      • 2 Baths
    View All Properties

    Follow Me On Instagram